George Washington University
  • Places
  • Landlords
  • Favorites
  • Help
    About Colleges & Universities Scam & Fraud Guidance FAQ Disclaimer
    Terms of Use Privacy Policy
    Contact Support Report a Problem
    Post My Ad Visit EMG.ca
  • Login
  • Back
  • Add To Favorites
  • Inquire Now
  • Call Landlord
Previous Next
15 Kirkwood Ave
House
15 Kirkwood Ave San Francisco, CA

$6,000

  • 3 bed
  • 3 bath
  • 2050 sqft
brought to you by
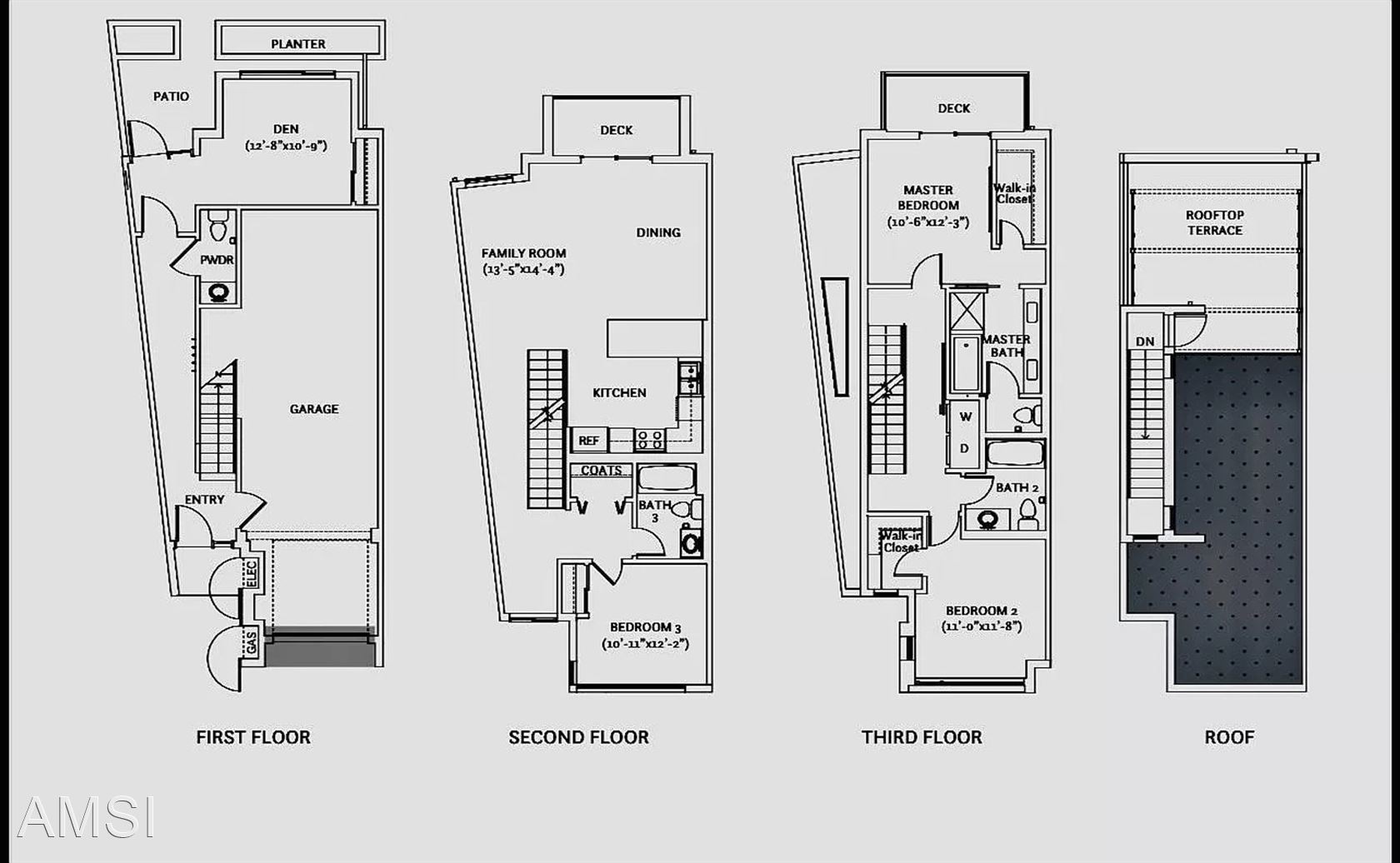
3 Bedroom + Bonus room/3.5 Bathroom Townhome | AMSI | Alexandr Metlinski - Welcome to this Modern/High-Tech Palisades Collection Townhome with stunning views. This townhome has a private garage with two-car parking spaces, lots of extra storage, and a private backyard. The first floor has one room with a separate half-bathroom. The light-filled second level is devoted to an open-plan kitchen, dining area, one bedroom, one bathroom, and a large living room with access to an expansive patio, ideal for study, relaxing, or entertaining. The spacious kitchen has stainless steel Bosh appliances. The open-concept floor plan offers free-flowing usable space across all levels. On the third floor are the two bedrooms, each with its separate bathroom. On the top level, there is a rooftop deck with a sunny microclimate, providing perfect family gatherings and entertaining opportunities. Innes Court Park and Overlook Point are within walking distance. Alexandr Metlinski 415-702-7824 ametlinski@amsiemail.com AMSI Agent DRE # 02043065 AMSI rents and manages unfurnished residences for all your housing needs. As a rental, leasing, property management, and home-finding solution, our inventory includes apartments, condominiums, single-family homes, and townhouses. Ask us about our corporate and furnished interim housing, relocation services, and real estate for sellers and buyers. AMSI is here to attend to all your housing requirements. https://www.amsires.com
Listing ID:
4246636
Rentlinx ID#:
7456366
Distance to campus:
2432.57 mi
(415) 702-7824

Listings close to this one

Beautifully Furnished Studio Apartment
163 Flournoy St APT C San Francisco, CA
$1,240
Apartment
  • Studio
  • 1 Bath
  • 400-Sqft
  • 2438.04-mi
  • Ad# 4471654
158 Sears St
158 Sears St San Francisco, CA
$6,500
House
  • 3 Bed
  • 2 Bath
  • 1752-Sqft
  • 2437.42-mi
  • Ad# 4344323
Private Small Single Room Near Sfsu
Niantic Ave Ingleside, San Francisco, CA
$890
House
  • 1 Bed
  • 1 Bath
  • 100-Sqft
  • 2438.13-mi
  • Ad# 845213
1 Crescent Way #1305
1 Crescent Way #1305 San Francisco, CA
$3,600
House
  • 2 Bed
  • 2 Bath
  • 1067-Sqft
  • 2433.99-mi
  • Ad# 4263518
Powered by Off-Campus Housing 101
Favorites
Places Roommates