George Washington University
  • Places
  • Landlords
  • Favorites
  • Help
    About Colleges & Universities Scam & Fraud Guidance FAQ Disclaimer
    Terms of Use Privacy Policy
    Contact Support Report a Problem
    Post My Ad Visit EMG.ca
  • Login
  • Back
  • Add To Favorites
  • Inquire Now
  • Call Landlord
Previous Next
1055 N Anchor Way
Apartment
1055 N Anchor Way Portland, OR

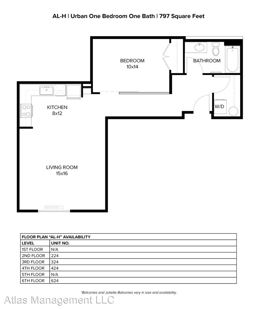
From $1,499

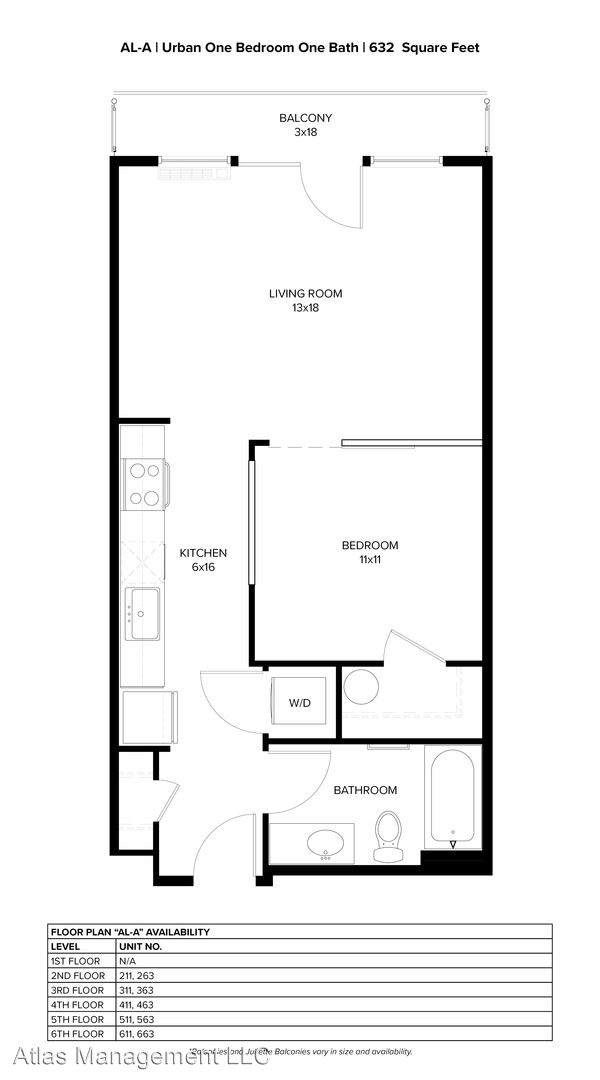
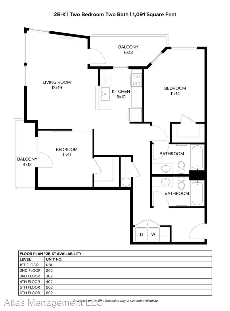
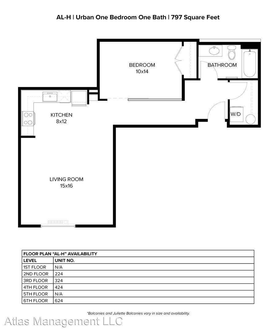
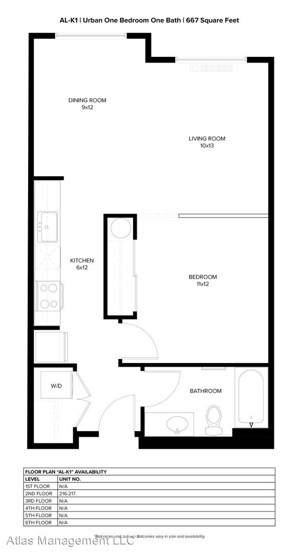
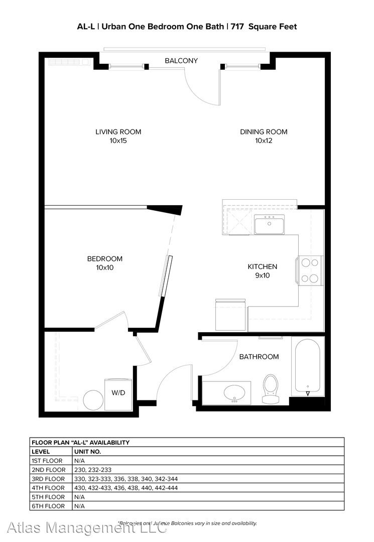
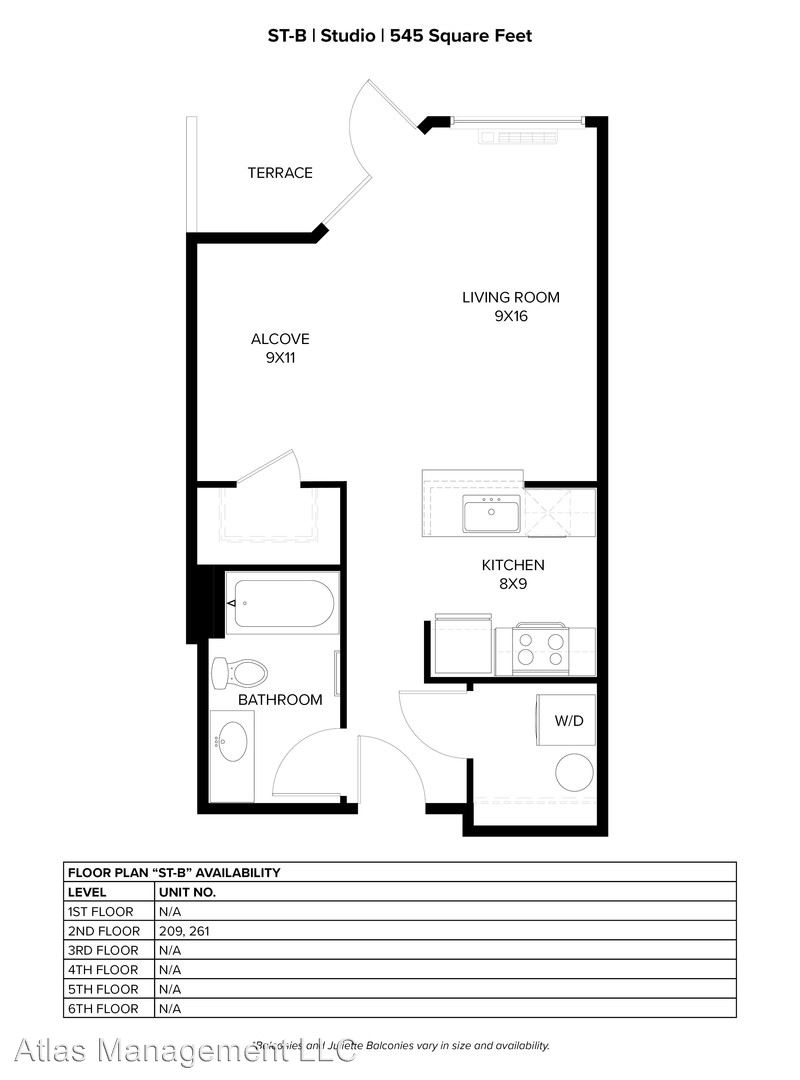
  • Studio
  • 1 bath
  • 797 sqft
brought to you by
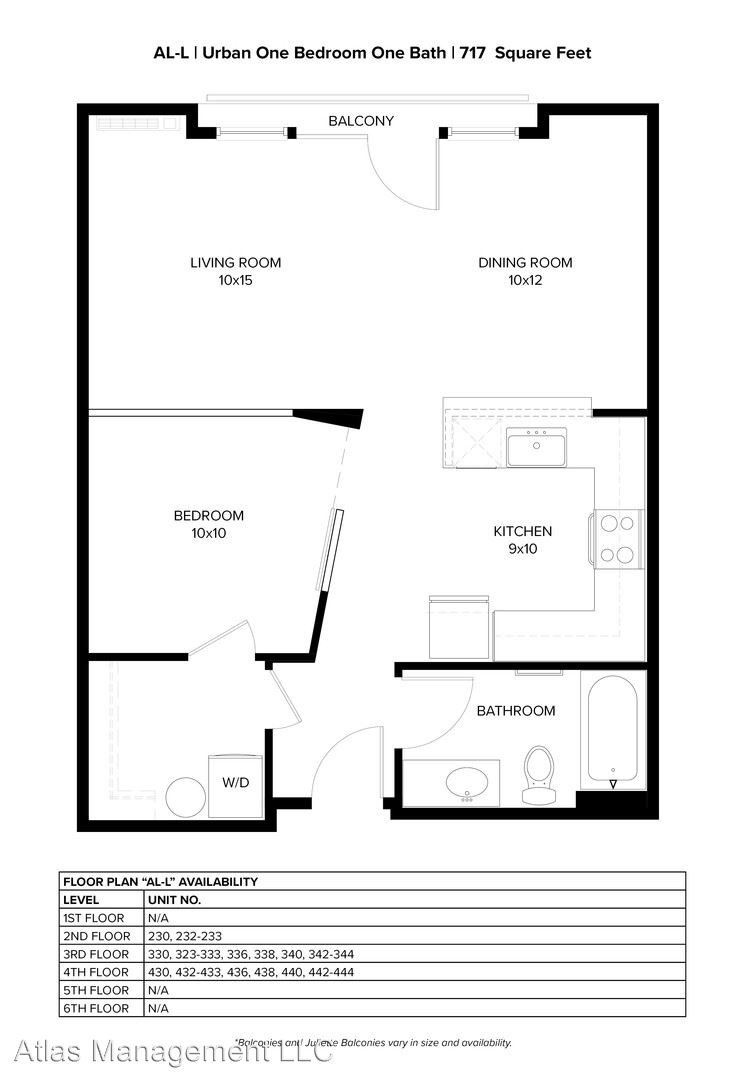
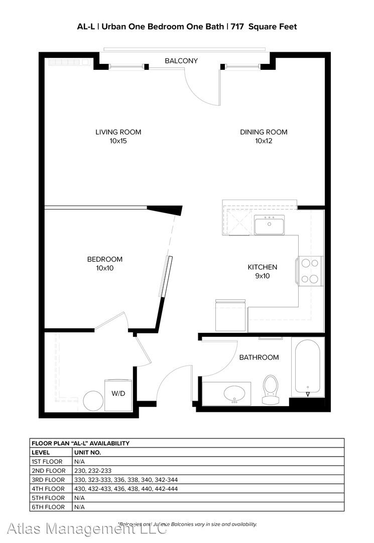
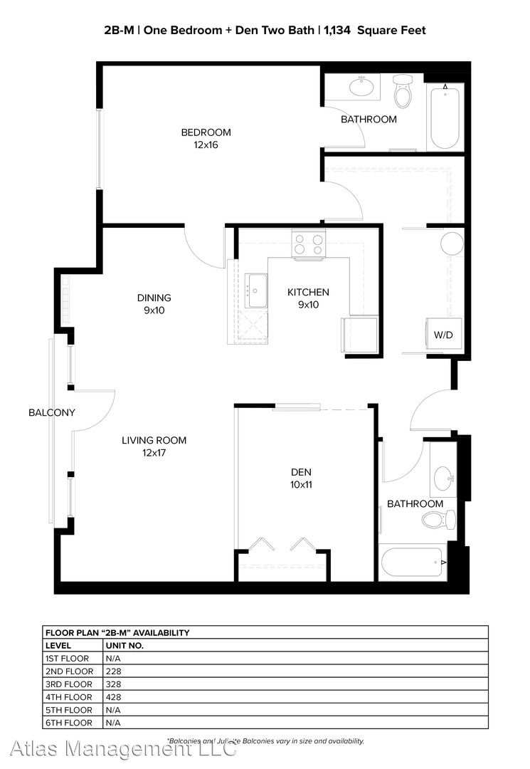
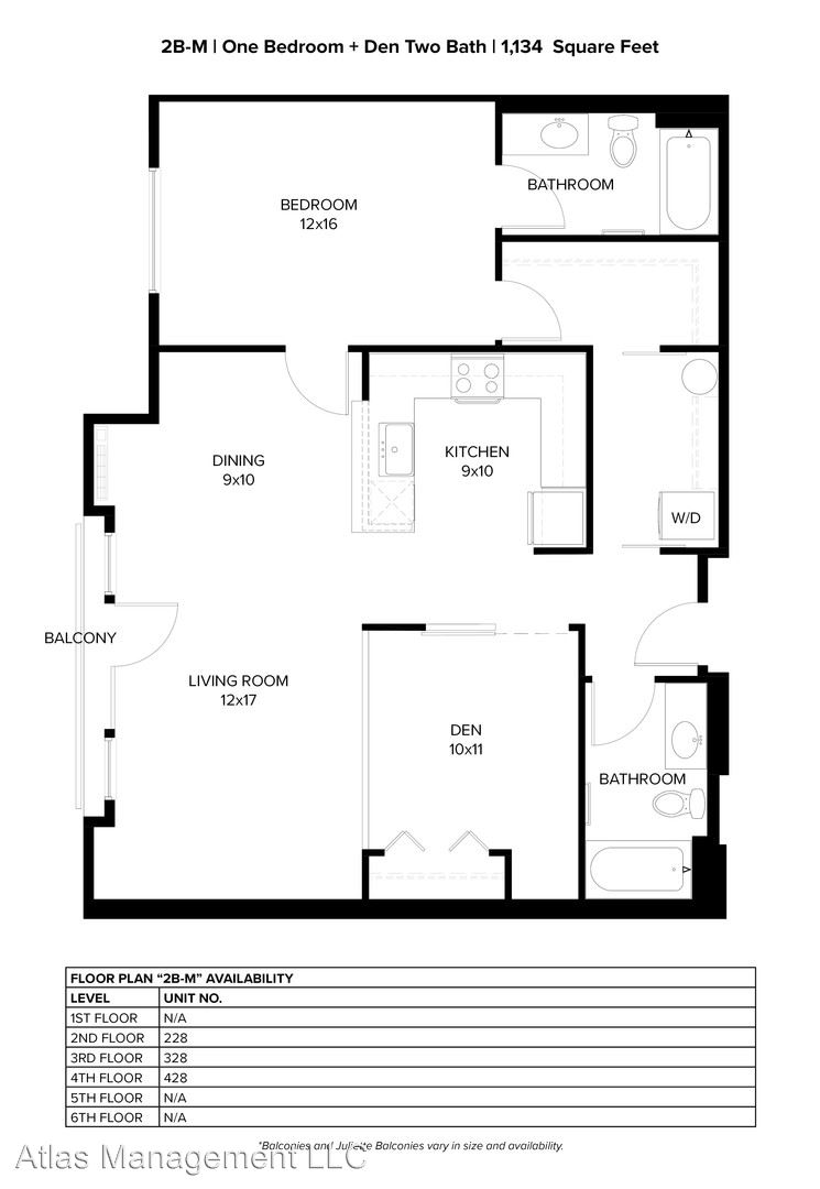
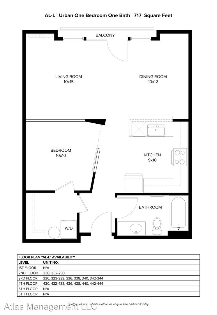
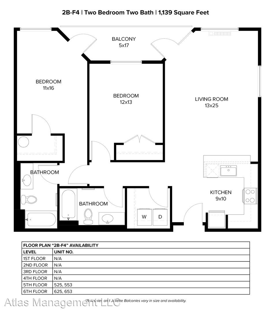
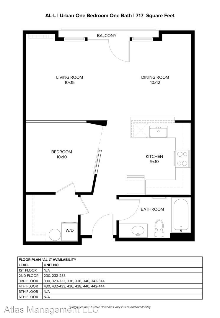
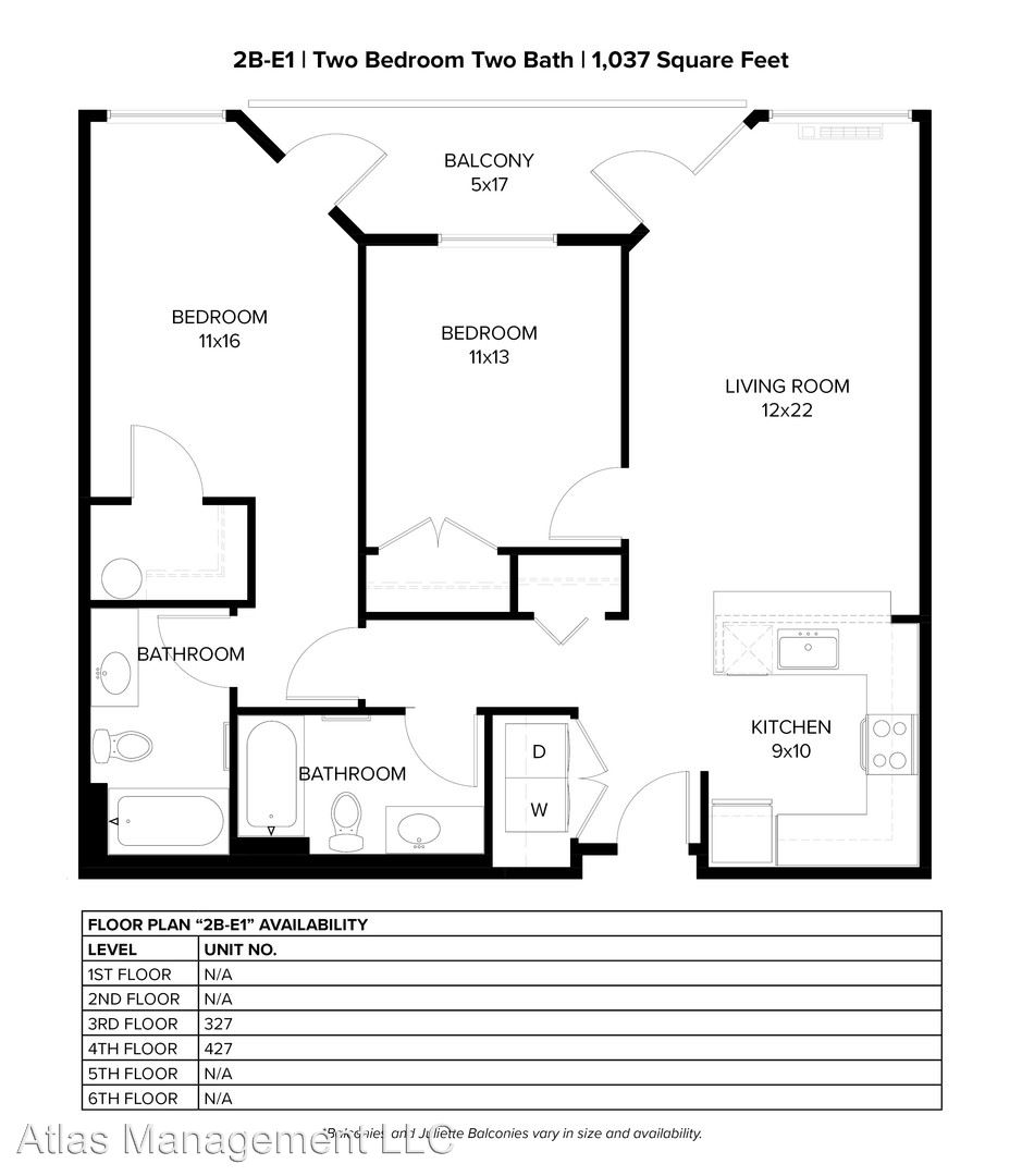
ASK ABOUT OUR CURRENT MOVE-IN SPECIALS! - LUXURY APARTMENT HOMES LOCATED ON THE COLUMBIA RIVER. CALL TODAY TO RESERVE YOUR NEW HOME! 971.409.6675 Look at you. Lounging poolside. Toasting sunsets. Welcome Home. Harbor Sky Apartments offers studios, one- and two-bedroom apartment homes, while bringing Pacific Northwest inspired apartment living to the Columbia Riverfront. Influenced by the urban culture of Portland and inspired by the natural landscape of the Columbia Riverfront, Harbor Sky provides a serene and convenient escape from the city without compromise. A place where luxury, convenience and comfort converge. Where breathtaking sunsets and epic mountain views welcome you home. A place to live, work and play like never before. Let us be the first to say, Welcome Home. Located north of Portland along the Columbia River, Harbor Sky is tucked away within a peaceful and coveted riverfront village. This charming neighborhood is home to a number of colorful destinations including golf courses, restaurants, trails, parks and close proximity to sought after shopping experiences. The location of Harbor Sky gives residents easy access to both the Portland, Oregon and Vancouver, Washington urban centers as well as the Portland International Airport. Pricing, specials and information are always subject to change. All information, regardless of source, is not guaranteed and should be independently verified. 971.409.6675 info@harbor-sky.com harbor-sky.com atlasmgmtpdx.com Follow Harbor Sky on Facebook and Instagram!
Listing ID:
1874130
Rentlinx ID#:
5083344
Distance to campus:
2346.22 mi

Features

  • Small Dogs Allowed
  • Small Dogs Allowed
(971) 409-6675

Listings close to this one

1944 Nw Johnson St.
1944 Nw Johnson St. Portland, OR
$1,395
Apartment
  • 1 Bed
  • 1 Bath
  • 600-Sqft
  • 2347.38-mi
  • Ad# 4365652
5417 Se Center Street
5417 Se Center Street Portland, OR
$2,250
House
  • 2 Bed
  • 1 Bath
  • 1700-Sqft
  • 2343.51-mi
  • Ad# 4365384
5715 N Michigan Ave
5715 N Michigan Ave Portland, OR
$2,725
House
  • 3 Bed
  • 3 Bath
  • 1333-Sqft
  • 2346.45-mi
  • Ad# 4365352
4730 Se 29th Ave.
4730 Se 29th Ave. Portland, OR
$2,495
House
  • 3 Bed
  • 2 Bath
  • 1066-Sqft
  • 2344.91-mi
  • Ad# 4365056
Powered by Off-Campus Housing 101
Favorites
Places Roommates